Masdeu y Asociados

Servicios

Cargas Proyecto:
Ingenieria - Trinca de cargas sobredimensionadas y de alta complejidad.

Somos el aliado estrategico. otorgandote un llave en mano total. Desarrollamos tu proyecto de principio a fin, un grupo de profesionales a disposicion y comprometidos para que puedas sentirte respaldado. Sabiendo que la excelencia es nuestra premisa.

Planificacion, ejecucion, y control. Planimetria e Ingenieria.

Nuestra experiencia en cargas de proyectos garantiza un manejo eficiente y seguro de sus mercancías. Ofrecemos soluciones personalizadas que se adaptan a las necesidades específicas de cada cliente.

Gestión Integral y Supervisión en Campo

Actuamos como su único punto de contacto, coordinando todos los permisos, equipos y personal especializado. Nuestro equipo supervisa cada fase de la operación en el terreno para garantizar que el plan se ejecute a la perfección y resolver cualquier contingencia en tiempo real.

Eficiencia Garantizada
Soluciones personalizadas que se adaptan a las necesidades específicas de su operación.
Soporte Integral
Asistencia continua para asegurar el éxito de sus proyectos marítimos.

Proyectos realizados

Warnes II

Ingeniería y Logística para el Transporte de Aerogeneradores

En el marco del Proyecto Warnes 2, fuimos contratados para asumir uno de los desafíos logísticos e ingenieriles más exigentes: planificar y ejecutar el transporte fluvial de componentes de aerogeneradores de gran porte.

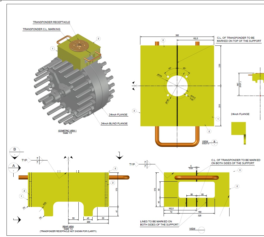
Nuestra participación incluyó el diseño completo del plan de carga en 20 barcazas, considerando tanto las dimensiones como el peso extremo de algunas piezas, que superaban las 150 toneladas.

  • El diseño y cálculo estructural de los soportes necesarios.
  • La simulación por elementos finitos (FEA) utilizando ANSYS, para validar el comportamiento estructural bajo condiciones reales de carga.
  • La fabricación a medida de los componentes.
  • La elaboración de planes de carga, estiba y lashing.
  • El desarrollo de la secuencia de carga específica para cada barcaza, adaptada a las características del conjunto transportado.
  • La combinación y aprovechamiento de barcazas tipo box y rake, optimizando el espacio y la distribución del peso.
  • Los cálculos de estabilidad para cada unidad fluvial.

Cada soporte fue diseñado específicamente para adaptarse a las condiciones del trayecto, garantizando seguridad y eficiencia en la operación. La integración entre ingeniería, simulación avanzada, logística y experiencia en campo fue clave para cumplir con los plazos y estándares del proyecto.

El resultado: un traslado exitoso, documentado paso a paso, del que hoy compartimos algunas imágenes destacadas.

Proyecto Fenix

Seafastening and Grillage

Hemos sido contratados para realizar el Seafastening and Grillage de toda la campaña de la plataforma submarina FENIX, donde tuvimos la oportunidad de realizar el grillage en mas de 20 buques supply. Fabricando todos los seafastening y soportes para el montaje de de plantas moviles y garantizando una total seguridad en la navegacion maritima de las plantas transportadas

Proyecto Unidades Habitacionales

Hemos sido contratados para el posicionamiento de carga- control de carga – seafstening and grillage –
Brindando una correcta y apropiada sujecion de carga en un buque de tres niveles de bodegas subdivididas, para la navegacion maritima desde Puerto TZ hasta Puerto Williams en Chile.

La Ingeniería y precisión que su carga crítica requiere

Nuestro equipo realiza la planificación, la ingeniería y los cálculos de estabilidad para garantizar que su carga de alto valor llegue a destino de forma segura y puntual.